Skip to main content

Wayside Avenue, Hertfordshire

Wayside is a stunning collection of four brand new luxurious homes in Bushey.

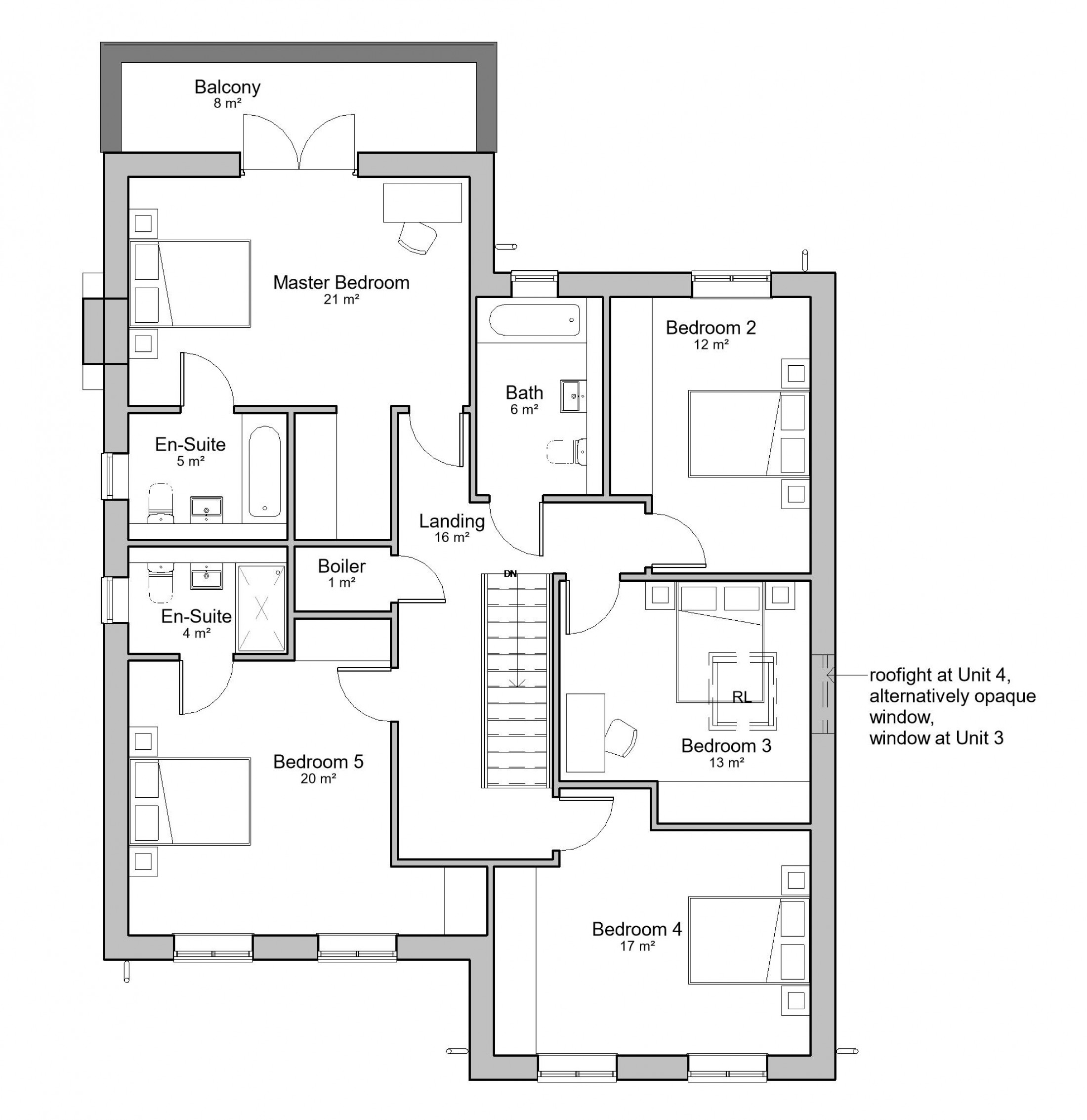
Expertly designed to the highest specification featuring five-bedrooms and three luxurious bathrooms with first rate fixtures and fittings and separate guest WC. The open plan kitchen, living, dining room with separate utility room serves growing families perfectly who dream of making a move to a new home.

With two styles to choose from either integral garage and office/lounge or lounge and office there is something for everyone. Thoughtfully designed to suit your lifestyle and complement the surroundings seamlessly with a premium specification which Heronslea is renowned.

    ⟵ Last project Next project ⟶